Продам производственное помещение 1011.4 м.кв.

на карте
Просмотров 3
135 540 160 руб.
Подольск , Коммунальная улица, д.44
Отдел продаж
Показать телефон
Данные актуальны на 17.03.2026
Пожаловаться на объявление
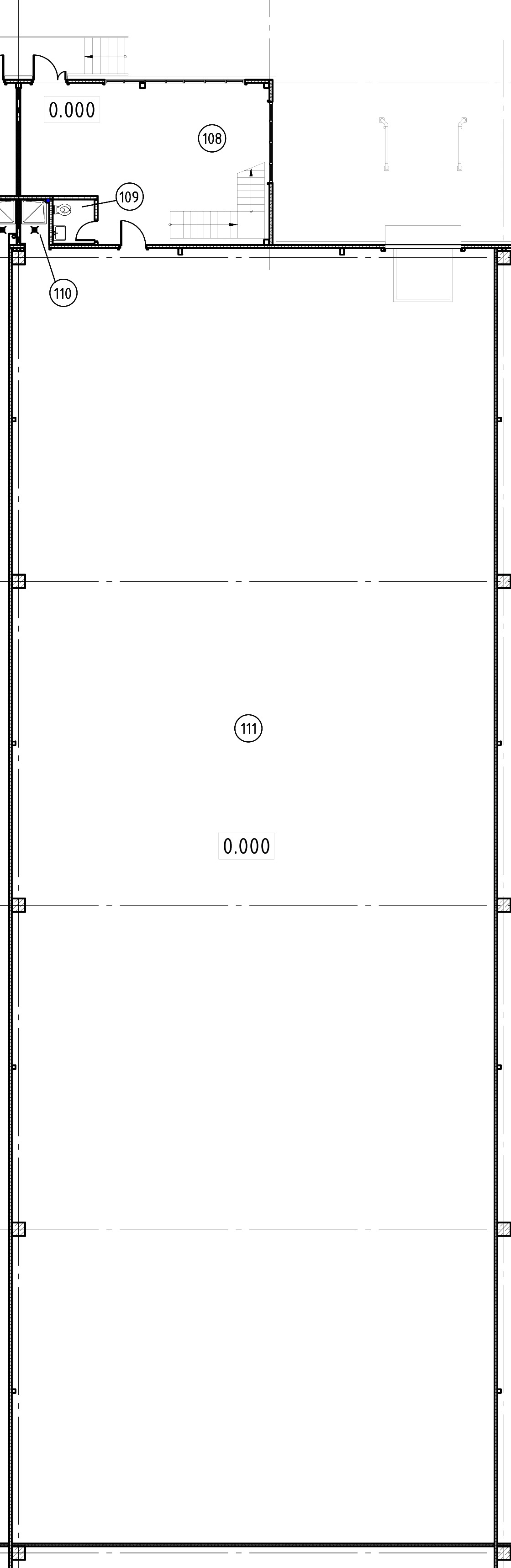
Продается новое готовое к заезду производственно-складское помещение вблизи МКАД в промышленном парке INDUSTRIAL CITY -ICPARK Коледино. Планировочное решение включает в себя пространство для производства, склад или логистику 901,44 кв.м, а также офисную часть 109,93 кв.м. Объект расположен в южном направлении с выездом на Симферопольское шоссе (М-2). Расстояние от МКАД — 24 км. Координаты: 55.373194, 37.575127 Продажа осуществляется напрямую от собственника парка, что гарантирует отсутствие каких-либо комиссий и скрытых платежей! Формат Base. Блок D, Бокс 14. ОСНОВНЫЕ ХАРАКТЕРИСТИКИ: - Класс: A - Температура: Сухой склад - Автоматическая спринклерная система пожаротушения - Высота: 8 м - Нагрузка на пол: 5 т/кв.м - Высококачественные бетонные полы с антипылевым покрытием и упрочняющим слоем - Сетка колонн: 12x24 - Ворота: докового типа КОММУНИКАЦИИ: - Электричество: 25 кВт (возможно увеличение мощности) - Вентиляция: приточно-вытяжная - Водоснабжение, канализация - Индивидуальные приборы учета ИНФРАСТРУКТУРА: - Парковки для транспорта: для грузовых авто — 1 место, для легкового авто — 3 места - Доступ к производственно-складским помещениям 24/7 - Охраняемая территория - Видеонаблюдение - Скоростной интернет и телефония ДОПОЛНИТЕЛЬНО: - Собственная профессиональная управляющая компания - Клининг - Консьерж-сервис - Мобильное приложение - Маркетплейс услуг - Кафе на территории - Зоны отдыха и спортивные площадки Готовы предоставить подробную информацию и организовать просмотр!

Дополнительная информация

Тип здания - Этаж 1 Этажность - Количество комнат - Вход Отдельный Ремонт С ремонтом Интернет Есть Кондиционер - Вентиляция Есть
Пожарная сигнализация Есть Грузовой лифт - Подъезд для фуры - Наличие пандуса - Наличие железной дороги - Красная линия - Электроэнергия 25 кВт Высота потолков - Кран-балка -
Динамика изменения цен на рынке недвижимости ?

За последние полгода средняя сумма за кв.м. выросла на 8602 руб. Колебание цен происходило от 65362 руб. до 73964 руб. На текущий момент наблюдается тенденция к росту цены.
Похожие объявления
Обновлено
19.03.2026
Фотографии
9
Объявление 735846
Подольск, Коммунальная улица, д.44
135 540 160
руб. Продажа
1011.4 м2
Обновлено
17.03.2026
Фотографии
11
Объявление 734532
Подольск, Коммунальная улица, д.44
129 879 307
руб. Продажа
969.1 м2
Обновлено
17.03.2026
Фотографии
9
Объявление 734517
Подольск, Коммунальная улица, д.44
129 879 307
руб. Продажа
969.1 м2
Вход в личный кабинет